Q941F电动法兰球阀
- 销售:
- 销售:
- 传真:
详情介绍
- 产品介绍
- 服务承诺
- 订货流程
Q941F电动法兰球阀适用于两位切断、调节的场合。阀与执行机构的连接采用直连方式,电动执行机构内置伺服系统,无须另配伺服放大器,输入4-20mA信号及220VAC电源即可控制运转。具有连线简单,结构紧凑、尺寸小、重量轻、阻力小、动作稳定可靠等优点。执行机构可根据用户要求另配置UNIC、PSQ、HQ、DHL等型号电子式电动执行机构或GTX、AL等气活塞式执行机构。
CH执行机构可直接接收计算机或工业仪表等输出的4~20mADC或1~5VDC控制信号,220VAC电源,根据阀位反馈信号与设定值比较偏差对执行机构驱动电机进行智能步距调整(PID调节),以实现与执行机构配套的阀门或其他装置开度的准确定位,同时输出4~20mADC的位置反馈信号。其核心控制部件电子式伺服控制器应用现代数字技术,对DCS/PLC规范设计而成,集信号采集、处理、反馈、控制于一体。采用的电子制动电路并附加机械阻尼装置消除惯性,可瞬时停机,定位时无振荡,定位精度可达0.3%以上。可控硅输出,动作时间快,输出稳定,可靠性高。体积小,轻便宜人,性能可靠,配套简单,流通能力大,特别适合于介质是粘稠,含颗粒,纤维性质的场合。目前该阀广泛应用于食品,环保,轻工,石油,造纸,化工,教学和科研设备,电力等行业的工业控制系数。
电动法兰球阀 执行标准
1、设计与制造:GB12237-89、API608、API 6D、JPI 7S-48、BS5351、DIN3357。
2、法兰尺寸:JB/T74~90(JB74~90)、GB9112~9131、HGJ44~76、SH3406、ANSI B16.5、JIS B2212~2214、NF E29-211、DIN2543。
3、结构长度:GB12221-89、ANSI B16.10、JIS B2002、NF E29-305、DIN3202。
4、检验主试验:JB/T 9092、API 598。
电动法兰球阀 技术参数和性能
CH执行机构技术参数 | 阀体参数 | |||
电源 | AC200/220V,50/60Hz | 公称通径 | DN10~300mm | |
输出力矩 | 50N·M~2000N·M | 公称压力 | PN1.6 2.5 4.0 6.4 31.5MPa(定制) | |
动作范围 | 0~90° 0~360° | 泄漏量 | 软密封:零泄漏 | 硬密封:≤额定流量的10-5 |
动作时间 | 15秒/30秒/60秒 | 执行机构 | 可另配PSQ、HQ、UNIC、361RS | |
保护装置 | 过热保护 | 流量特性 | 快开特性 | |
环境温度 | -30°~60° | 可调范围 | DN10-80 | DN100-300 |
250:1 | 350:1 | |||
手动操作 | 同附带手柄操作 | 基本误差 | ±1% | |
限位 | 电气、机械二重限位 | 死区 | ≤1% | |
防护等级 | 相当于IP-65 | 回差 | ≤1% | |
位置测量 | 可选装开关或电位计 | 适用温度 | 密封面 | |
驱动电机 | 8W/E | PTFE≤150℃ RTFE≤180℃ PPL≤300℃ 硬密封≤450℃ | ||
进线接口 | PE1/2〞进线线锁 | |||
电动法兰球阀压力试验
试验压力 | 公称压力(Mpa) | 压力级(class) | JIS(Mpa) | |||||||
1.6 | 2.5 | 4.0 | 6.4 | 10.0 | 150 | 300 | 600 | 10K | 20K | |
强度试验 | 2.4 | 3.8 | 6.0 | 9.6 | 15.0 | 3.1 | 7.8 | 15.3 | 2.4 | 3.8 |
密封试验 | 1.8 | 2.8 | 4.4 | 7.0 | 11.0 | 2.2 | 5.6 | 11.2 | 1.5 | 2.8 |
气密试验 | 0.5~0.7 | |||||||||
电动法兰球阀主要零件材料
零件名称 | 材 料 | ||||||
阀体 | WCB | ZG1Cr18Ni9Ti | CF8 | CF3 | ZG1Cr18Ni12Mo2Ti | CF8M(316) | CF3M |
球体、阀杆 | 2Cr13 | 1Cr18Ni9Ti | 0Cr19Ni9 | 00Cr19Ni11 | 1Cr18Ni12Mo2Ti | 0Cr17Ni12Mo2 | 00Cr17Ni12Mo2 |
密封圈 | 聚四氟乙烯(PTFE)、增强聚四氟乙烯(PPL)、对位聚苯 柔性石墨 | ||||||
适用介质 | 水、气体、蒸汽、油品等 | 硝酸等腐蚀性介质 | 强氧化性介质 | 醋酸等腐蚀介质 | 尿素等腐蚀性介质 | ||

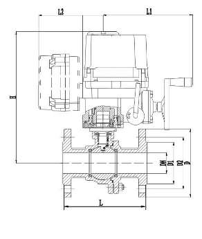
电动法兰球阀主要外形尺寸
公称通径DN(mm) | 尺寸(mm) | |||||||
L | D | D2 | D1 | L2 | H | L1 | Z-d | |
15 | 130 | 95 | 65 | 45 | 136.5 | 284 | 216 | 4-14 |
20 | 140 | 105 | 75 | 55 | 136.5 | 284 | 216 | 4-14 |
25 | 150 | 115 | 85 | 65 | 136.5 | 284 | 216 | 4-14 |
32 | 165 | 135 | 100 | 78 | 136.5 | 284 | 216 | 4-18 |
40 | 180 | 145 | 110 | 85 | 136.5 | 284 | 216 | 4-18 |
50 | 200 | 160 | 125 | 100 | 136.5 | 284 | 216 | 4-18 |
65 | 220 | 180 | 145 | 120 | 136.5 | 328 | 216 | 4-18 |
80 | 250 | 195 | 160 | 135 | 140 | 380 | 270 | 8-18 |
100 | 280 | 215 | 180 | 155 | 140 | 387 | 270 | 8-18 |
125 | 320 | 245 | 210 | 185 | 140 | 426 | 276 | 8-18 |
150 | 360 | 280 | 240 | 210 | 140 | 458 | 290 | 8-23 |
良好的品质、优良的服务 bat·365(中国)正版唯一官网为你创造更多价值!
“bat·365(中国)正版唯一官网”的期望,不断提升服务质量,精益求精,“真诚的服务”是“bat·365(中国)正版唯一官网”永恒的主题。“bat·365(中国)正版唯一官网”严格按照IS09001-2000 质量体系认证要求,质量严格把关, 责任到人,确保生产、销售、服务的健康运行。加强与用户沟通,竭诚为广大客户提供优良产品,至善至美服务。特此我厂做出以下承诺:
产品标准:
产品严格按照中国GB、HG 标准和美国API等标准设计、制造、验收。密封面硬度达到国家规定要求,宽度超过国家标准。
售前服务:
产品介绍,技术交流,非标产品设计,疑难解答。
售中服务:
守信合同,保证及时供货,随时保持与客户联系。 对特殊或复制的产品,我厂安排技术人员对用户进行产品使用、故障排除
售后服务:
1、“bat·365(中国)正版唯一官网”牌产品品质期为自出厂起12个月,实行“三包”服务(包退、包换、保修)。
2、产品在使用中我厂定期组织技术、质检人员进行访问,征询用户对产品质量、 使用状况、改进意见等方面的反馈, 以便进一步提高产品质量。
3、对用户投诉质量问题,快速作出反应,售后服务人员在24-36小时(省外48小时)赶赴现场。
4、对售后服务,要求用户填写服务后的质量反馈信息表,并作出鉴定意见,以便提高bat·365(中国)正版唯一官网的服务质量。
1、客户如对产品有特殊要求,须在订货合同中提供以下说明:
a、结构长度;
b、连接形式;
c、公称直径、全通径、缩径、管道尺寸;
d、运行介质及温度、压力范围;
e、试验、检验标准及其他要求
2、本厂可根据客户特定要求配置各类驱动装置。
3、如由客户提供确定的阀门类型和型号时,客户应正确说明其型号的含义和要求,在供需双方理解一致的条件下签订合同。
4、期货、订货的客户请先来电函详细告诉所需的阀门型号、规格、数量以及交货时间、地点,并按总的30%预定金或全额货款及时汇入我厂帐户,其余货款待发货前汇入,以便及时安排发货。
订单流程:
1、客户采购清单传真至,或来电咨询
2、收到客户采购清单,为客户提供阀门型号选型与报价(价格清单)。
3、具体商定:交货期、特殊要求等事宜。
订货须知:
1、客户如对产品有特殊要求,须在订货合同中提供以下说明:
|
|||||
|
|||||
2、本厂可根据客户特定要求配置各类驱动装置。
|
|||||
3、如由客户提供确定的阀门类型和型号时,客户应正确说明其型号的含义和要求,在供需双方理解一致的条件下签订合同。
|
|||||
4、期货、订货的客户请先来电函详细告诉所需的阀门型号、规格、数量以及交货时间、地点,并按总的30%预定金或全额货款及时汇入我厂账户, 其余货款待发货前汇入,以便及时安排发货。
|
售中服务:
守信合同,保证及时供货,随时保持与客户联系。
对特殊或复制的产品,我厂安排技术人员对用户进行产品使用、故障排除
售后服务:
1、“bat·365(中国)正版唯一官网”产品品质期为自出厂起12个月,实行“三包”服务(包退、包换、保修)。
2、产品在使用中我厂定期组织技术、质检人员进行访问,征询用户对产品质量、使用状况、改进意见等方面的反馈,
以便进一步提高产品质量。
3、对用户投诉质量问题,快速作出反应,售后服务人员在24-36小时(省外48小时)赶赴现场。
4、对售后服务,要求用户填写服务后的质量反馈信息表,并作出鉴定意见,以便提高“bat·365(中国)正版唯一官网”的服务质量。
声明 |
|